Harden your physical security with bulletproof transaction windows from TSS.
Set-in-place, bullet-resistant transaction windows are the most common ballistic barrier in North America. These flexible solutions convert any reception area, checkpoint, or transaction area into a secure point of sale.
Whether you’re a builder looking for an effective solution, an architect who needs aesthetically pleasing materials, or a safety manager looking to harden physical security, you’ve come to the right place. For decades, Total Security Solutions has produced a range of high-end security transaction windows. We support builders and architects at every step of the process, creating custom solutions that offer industry-leading protection and unparalleled aesthetics.
TSS bullet-resistant transaction windows are designed with safety and aesthetics in mind. Communication between the secure and threat side is clear and natural. The clear glazing and elegant frame lines provide an undisrupted experience. Above all, the industry-leading ballistic materials keep your people and your assets safe.
No matter what your situation is, TSS can fabricate a suitable bulletproof service window for your unique space. From a pass-thru window in a bank teller line to a drive-thru window at a hospital pharmacy, we can provide interior and exterior solutions that are custom-fabricated to stand the test of time.
The baffle security window is one of TSS’s premier products. Baffle windows feature an offset glazing system that allows for natural sound transfer with minimal visual obstruction. The staggered window baffles remove any possibility of a shooting lane while remaining a visually unobtrusive barrier that blends in with the surroundings.
The most traditional style of transaction window, a hole and backer transaction window features a round voice port in the ballistic glazing at mouth level. The 6" voice port and oversized 10" backer facilitates superior voice transmission and clear, full-face visibility making communication easy. This transparent style is ideal for interior applications, but steel talk-thru ports are also available. Metal backers are especially common in exterior settings.
Arched teller windows feature a large, oblong backer. The elegant rounded lines enhance the design of your space while facilitating a high degree of visibility and good voice transmission. Like the baffle window, there is no clear shooting line between the staggered pieces of ballistic glass.
Another common bullet-resistant transaction window, sliding reception windows are available in vertical or horizontal slides. These windows are usually equipped with a hole and backer-style voice port for clear voice transmission. Sliding transaction windows are ideal for high-traffic facilities such as medical offices, government buildings, or law offices. To pass packages or documents through, the window slides open easily. Other passer styles are compatible with sliding reception windows, and creating a sliding ticket window with a deal tray is a custom option.
This all-aluminum transaction window has small, secure air passages throughout the frame to facilitate natural voice communication.
The Natural Voice Rail is a TSS original. Similar to the aluminum voice around the transaction window, the NVR has a secure air passage that allows sound to transfer. This passage is built into the frame, but to the average user, the construction appears to be solid.
Specifically designed for outdoor applications, exterior transaction windows feature a solid frame, weatherable glass-clad polycarbonate glazing, and voice port for secure communication. Exterior transaction windows are also compatible with flip lid cash trays, deal trays, ballistic countertops, and a variety of frame options.
All standard TSS transaction windows rely on natural voice transmission, as opposed to intercoms. TSS CEO Jim Richards explains:
“I've been doing this for decades, and still don’t like intercoms. Yes, we sell them, because in some situations it’s absolutely what a customer needs. But there is constant tweaking with them, potential issues with crosstalk and static interference. There’s just more that can go wrong. In that regard, they are a little less predictable, which can end up being really annoying to the end user.”
If you’re considering an intercom voice transmission system and want to learn more about other options, please don’t hesitate to reach out. We’ve helped businesses and institutions across the country create custom ballistic solutions that provide the highest level of safety and aesthetics and we’re ready to walk you through your options today.
Get free advice from our ballistic experts.
The six types of ballistic transaction windows are just a starting point for safe and secure transactions. TSS has extensive custom capabilities so you can get the right bulletproof transaction window for your space—whether you’re in a century-old building or brand-new construction.
Every product that goes out the door is made to order, so in the words of CEO Jim Richards, “custom work is not an issue.” In fact, our custom capabilities are something we’re extremely proud to offer—alongside our speed and customer service.
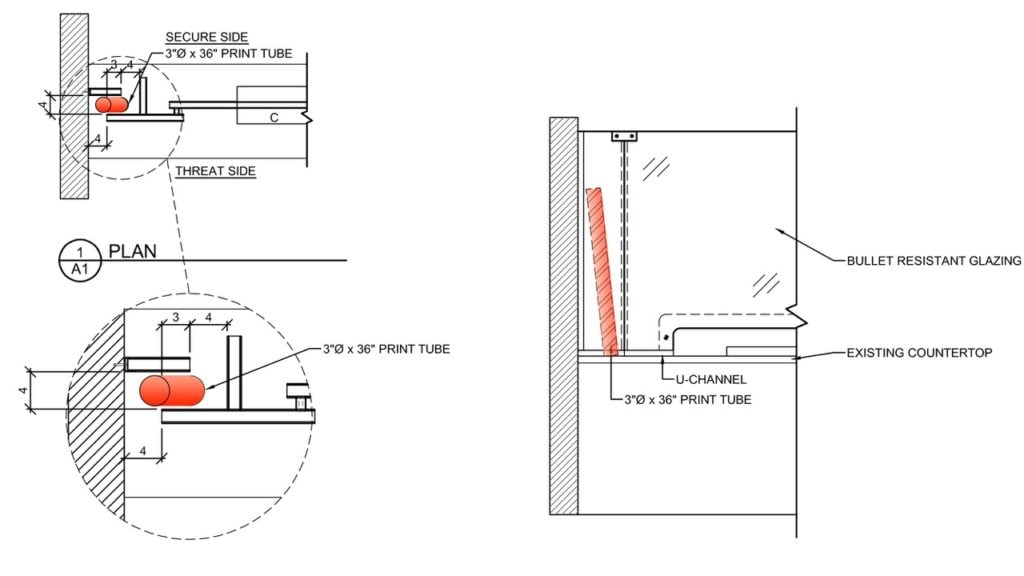
For example, a city office approached TSS with a unique challenge—passing large, rolled blueprints without compromising security. TSS created an offset pass around solution that allowed city staff to pass rolled blueprints safely, despite their inconvenient dimensions and without any threat exposure.
“It all just depends on what the application is. We can make something they can slide a clipboard through, pass blueprints around, or use to exchange boxes or packages. We’re always ready to design something that meets the customer’s needs."
Ballistic glazing refers to all types of transparent ballistic panels—what most people call bulletproof glass. Bulletproof glazing can be made of acrylic, polycarbonate, glass, or glass-clad polycarbonate (GCP), which is a combination of those materials .
In general, many of our projects fall into the following categories:
Many project specs will call out the level you need. If you’re not sure, one of our knowledgeable experts would be happy to help.
Whether you need a sliding reception window, baffle window, or ticket window with a deal tray, there are three main components that every custom transaction window will incorporate.
The factors that influence the cost of your bulletproof transaction window system include the overall design and size, protection level, as well as the type of glass and framing components.
The cost of a single station transaction window may start around $4,000 and will go up depending on the above and other factors. Multiple station transaction line systems can run into the tens of thousands depending on many factors.
When you’re planning the budget for your ballistic transaction window project, you may need to factor in additional costs, such as wall panels, frames, and other accessories. There will also likely be an additional cost for design, manufacturing, packaging, shipping, and installation.
By offering custom-designed solutions for every unique project, TSS makes sure you only pay for the products and services you need. If you have questions about pricing, please don’t hesitate to reach out! These projects are complex, so the best way to determine the cost of your bulletproof system is to speak with a TSS ballistic expert.
Ready to plan your security transaction window project? Get started by asking yourself these questions:
Yes, bullet-resistant transaction windows can be installed both indoors and outdoors, but it’s critical to use the right materials for each application. Exterior installations must account for UV exposure, moisture, and temperature changes. TSS engineers ensure the correct glazing and framing are used for outdoor environments to maintain ballistic integrity and long-term performance.
Because sound doesn’t travel well through bullet-resistant glazing, transaction windows are equipped with sound transfer solutions like voice ports or natural voice transfer systems. These allow for clear, two-way communication that's especially important in facilities that handle sensitive information.
Absolutely. TSS offers a range of customizable options to meet aesthetic, functional, and operational requirements. From matching specific countertop heights to facilitating unusual transactions like blueprint transfers or adjustable-height workstations, our team can engineer windows to your exact specifications.
Yes. TSS transaction windows often incorporate pass-through accessories, such as sliding windows, package passers, or drawers. These are ideal for safely exchanging items like cash, paperwork, or larger packages—especially for facilities that need to remain secure after hours or handle nighttime transactions.
Yes, deal trays (also called currency trays) are one of the most common accessories included in bullet-resistant transaction windows. They allow for seamless, secure exchange of small items like cash or documents without compromising the ballistic protection of the window system.
Transaction window countertops are typically surfaced in plastic laminate or stainless steel. Plastic laminate is the most common due to its affordability and variety of color options, making it ideal for interior use. Stainless steel is often chosen for exterior applications or where higher durability and hygiene are priorities. Currency trays are usually recessed into the countertop to allow secure and efficient item exchange.
TSS is proud to provide businesses, organizations, and institutions across the country with industry-leading Safety + Aesthetics™ in ballistic barrier solutions, alongside exceptional customer service.
We’re happy to field any questions you might have about getting started; to get in touch or request a quote, send us a message online, or call us at 517-715-0800. We look forward to speaking with you!