There are three questions you need to be able to answer when adding bulletproof windows and enhanced security features to a city building — and none of them have to do with gun types or bullet calibers.
When they think about security, most county supervisors and city managers focus on what they want to stop. That’s usually whatever style of assault weapon has most recently dominated the news.
But this isn’t the best way to approach city building security upgrades.
First and foremost, it’s an expensive approach. Assault rifle rounds are engineered to penetrate. Stopping them requires materials that are heavier, more expensive, and more difficult to work with.
Second—and equally important—stopping an assault rifle is almost certainly entirely unnecessary. Mass mayhem with assault rifles is heavily reported because it is rare (and thus newsworthy). Meanwhile, a few common handgun calibers account for almost all of the shootings in America.
But most importantly, by focusing on what bullets you want to stop during a disaster, you may distract yourself from addressing the interactions you want to facilitate on a daily basis.
These are the three key questions you want to ask as you begin your project:
- How do we communicate with visitors?
- What do we need to pass between staff and the public?
- What do we need to secure?
Answering these questions now allows you to enhance safety and security in an active city building while also improving the workplace environment and visitor experience.
Download the Utility Office Security Plan
How Do We Communicate through Bulletproof Windows?
The publicly facing business in a city building hinges on communication (e.g., answering questions, exchanging forms, explaining processes, setting expectations).
When a situation turns violent in a city building, it most often comes down to mounting frustrations, and poor communication can make that worse.
Todd Ross works for Total Security Solutions, where he specializes in physical security enhancements for cities and their payment/utility offices. According to Ross, “You want to be sure you can communicate as clearly as possible through your bulletproof windows. If someone is upset, you don’t want to make them repeat themselves.” Repeating a grievance aloud reinforces and amplifies that complaint. “The feeling that ‘I’m not being heard’—that’s what makes a situation escalate.”
As you begin to consider enhancing building security, take time to observe the conditions under which your staff needs to speak with visitors—especially at payment or clerk desks, where issues can be complicated or emotionally charged. What contributes to these conversations going well—or gets in the way? Is the room so loud that visitors have trouble hearing? Or is it so small that they keep their voices low, worried that they’re being overheard? Does the office have an exterior door, forcing staff and visitors to compete with outside elements like street noise or weather?
Many municipalities assume they’ll need to rely on the old-style “intercom” systems. That’s rarely the best option. Intercoms can be extremely frustrating, especially for visitors with communication challenges (hearing loss, non-native speakers, etc.) Ballistic companies offer many options for communication systems. Newer “natural voice” systems use the layout of the barrier components themselves to assist in transferring voices and can be extremely effective.
What Are We Passing in this City Building?
What sorts of items do your workers need to be able to accept or distribute? If they mostly handle papers, are there occasions when they must accept a package or pass a bulky item? How regular are those occasions? Are they during regular business hours? What are the dimensions?
This often seems like the most challenging aspect of the security barrier for a city building. The bulletproofing industry initially evolved from bank security. (In fact, to this day, the sort of reinforced clerk’s area seen in city offices are still called “teller lines” in the industry.) Because many bulletproof solutions were designed for banks, they tend to be extremely good for passing papers and envelopes—but good for little else.
TSS moved past that long ago. They don’t just offer standard dimension steel drawers manufactured by third parties. TSS has developed their own line of custom passers that suit the needs of their broad clientele. This includes a range of all acrylic package passers in standard sizes, as well as more specialized items, like the “pizza passer.”
A city building may handle awkward packages with a “pizza passer”
This style of passer gets its name from its low profile—and the fact that we developed it at the request of a national pizza chain after two locations were robbed by thieves who drove cars through the locked front doors.
The low profile and single “drop lock” back-flap door of the pizza passer makes this excellent for giving visitors a wide range of bulky or awkward items (as well as long items, like rolled blueprints).
Blueprints are especially challenging. This is especially the case in municipal settings, where such awkward-sized items must be passed both ways.
Package Passers for a City Building: Hinged-Panel and Offset Bulletproof Windows
TSS has pioneered several solutions for municipal offices that regularly need to pass blueprints. The first is a hinged panel passer, like the one shown below. Here the lower section of the bulletproof window is hinged, so it can lift in, and secured with steel drop-lock latches.
Bulletproof windows with a hinged panel passer
This solution is wonderfully compact—taking up no additional counter space—and able to pass a wide range of items.
But a hinged panel passer isn’t always the right solution. Depending on office layout, risk profile, or other aspects of municipal operations, a city might want a more secure solution.
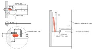
With an offset plan pass-thru (shown below), TSS positions the cuts and channels comprising the barriers system in such a way that the bulletproof window creates an integrated pass-thru around one side. This perfectly accommodates passing blueprints without creating any risk exposure for workers, or the possibility of a firearm hazard.
Sample design drawing for offset plan pass-thru bulletproof windows. Staff can pass rolled blueprints (shown in red) without any threat exposure.
What Do We Need to Secure?
Most city offices are looking to protect their payment/service desks, where visitors come to pay parking tickets, request documents. In most cases, this is a longer desk with several stations for city workers. The layout is very similar to a bank counter or “teller line”.
In smaller offices, there may be a single payment window. These can be seamlessly reinforced with an integrated transaction window. TSS can usually complete such jobs overnight, with no interruption to city business.
Another popular approach in a city building is to add a ballistic check-in station at the building entrance. This allows security to safely vet visitors before they get close to any staff or sensitive areas. Check-in stations can be a standalone kiosk (like the one shown below). Or, you can convert an existing vestibule-style doorway into a checkpoint.
City building check-in station with bulletproof windows
With a bulletproof vestibule checkpoint, TSS adds a transaction window to the wall of the entryway. They then replace the interior doors of the vestibule with bullet-resistant doors secured by an electric “buzz-thru” system. Visitors must check-in at the transaction window before a worker buzzes them into the building itself.
TSS first developed this “bulletproof vestibule” solution for schools. It provides an extremely cost-effective security upgrade that takes full advantage of the existing facility.
In either case, you’ll want an idea of the rough dimensions of the space to be secured, the number of daily visitors, the number of staff who will work on the secure side of the barrier, etc.
Remember the three questions that are key to keep in mind when starting a new bulletproof barrier project:
- How do we communicate with visitors?
- What do we need to pass between staff and the public?
- What do we need to secure?
Our experts are ready to help answer these questions and create a custom-designed bulletproof system for your city or Municipal building.

